3D–Laserscanning stellt eine neue Form der Bestandserfassung dar. Das Messergebnis beschreibt gemessene Punkte im Raum. Jeder Punkt wird mit seiner exakten Position im Raum abgebildet. Jede Messung erfasst viele Millionen von Punkte. Dabei werden auch nicht zugängige Bereiche erfasst. Die Punktwolke, als Ergebnis der Messungen, bildet die Grundlage für weiterführende Bearbeitungen. Sie ist die Grundlage für individuell gewünschte Ergebnisse. Diese sind: Bestandpläne, 3D-Modelle, Ausmassermittlungen, Visialisierungen, Strangschemas, Entwurfsvarianten, Kollisionsanalysen, Deformationsanalysen ….
Die Kinderbetreuungseinrichtung im englischen Landhausstil wurde in den Jahren 1923 bis 1925 auf dem Gelände der ehemaligen Gärtnerei des katholischen Matzleinsdorfer Friedhofs eingerichtet. Die vielfältigen Reliefs und die kleinteilige Dachgeometrie wurden bis ins Detail erfasst.
Der Scanumfang umfasst den kompletten Außen- und Innenraum. Die generierte Punktwolke ist Grundlage für horizontale und vertikale Schnitte und Darstellung der Ansichten.
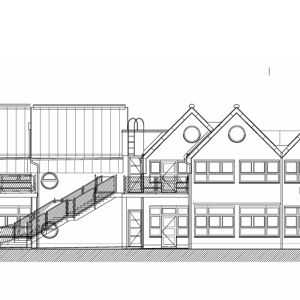
Die Feuerwache der Stadt Wien in Steinhof wurde 1930 vom Wiener Stadtbauamt errichtet. Der zweigeschoßige Bau mit unregelmäßigem Grundriss besitzt ein Walmdach, eine gestaffelte Fassade und Klinkerlisenen. Das zu den Grünflächen zugewandte zweigeschossige Rundgebäude beinhaltet Lagerflächen und Flächen für die Infrastruktur. Das Gebäude steht unter Denkmalschutz.
Der Scanumfang umfasst den kompletten Außenraum und Innenraum. Die generierte Punktwolke ist Grundlage für horizontale und vertikale Schnitte und Darstellung der Ansichten.
Bei dem Objekt handelt es sich um die Kirche der Pfarre St. Petrus. Sie wurde im 16 Jahrhundert an der Stelle einer von alters her errichteten Kapelle errichtet. Am Ende des 18 Jahrhundert wurde sie komplett neu aufgebaut.
Der Scanumfang umfasst komplett den Außenraum und Innen nur die Haupträume. Die generierte Punktwolke ist Grundlage für die Darstellung der Grundrisse, Schnitte und Ansichten.
Es handelt sich um ein Palais mitten im 8. Bezirk in Wien. Das Gebäude steht unter Denkmalschutz. Es wurde zu Beginn des 18. Jahrhunderts errichtet. Heute ist es Sitz des österreichischen Museums für Volkskunde.
Der Scanumfang umfasst den kompletten Außenraum und Innenraum. Die nicht rechtwinkelige Straßenkreuzung Laudongasse und Lange Gasse bildet die Schablone für die innenliegenden nicht rechtwinkeligen Bauteilführungen. Damit weist das Objekt, gemeinsam mit den Setzungen oder Gewölben, durchwegs schiefe und schräge Bauteile auf.
Die generierte Punktwolke ist Grundlage für horizontale und vertikale Schnitte und Darstellung der Ansichten.
Bei dem Objekt handelt es sich um die Kirche der Pfarre St. Nikolaus. Errichtet wurde Sie wurde im 17 Jahrhundert. Im Lauf der Geschichte gab es Zerstörungen, Wiederaufbauten und Erweiterungen. Im Jahr 1980/81 erfolgte eine Generalsanierung.
Der Scanumfang umfasst komplett den Außenraum. Die generierte Punktwolke ist Grundlage für die Darstellung der Ansichten.
Bei diesem Objekt handelt sich um das magistratische Bezirksamt für den 23. Bezirk. Das Gebäude wurde von Architekten Helmer und Fellner geplant, im Neorenaissancestill errichtet und am 7. Februar 1904 eröffnet. Die Räumlichkeiten werden von Bezirksvorstand und anderen Dienststellen benutzt. Das Objekt würde in 2003 und 2004 saniert und die zweite Etappe der Generalsanierung erfolgte im 2007.
Der Scanumfang umfasst den kompletten Außenraum und Innenraum. Die generierte Punktwolke ist Grundlage für horizontale und vertikale Schnitte und Darstellung der Ansichten.
Das Amtsgebäude wurde mitten im Betrieb vermessen. Durch die Schnelligkeit und Flexibilität des 3D-Lasermessgerätes erfolgte die komplette Bestandsaufnahme effizient, störungsfrei und zur Zufriedenheit aller Beteiligten Parteien.
Der Scanumfang umfasst den kompletten Außen- und Innenraum. Die generierte Punktwolke ist Grundlage für horizontale und vertikale Schnitte und Darstellung der Ansichten.
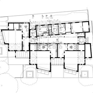
Bei diesem Objekt handelt es sich um eine Volksschule und eine solzialpädagogische Einrichtung im 10. Wiener Gemeindebezirk. Das Projekt umfasst mehrere Gebäudeteile. Einen hofseitigen Altbau der sozialpädagogischen Einrichtung, einen straßenseitigen Altbau der Volksschule, sowie ein Eckgebäude, welches als Erweiterung Letzteren dient.
Die Vermessungstechnik mittels 3D-Laser ist der Vielfalt der Gebäudestile flexibel anpassbar.
Der Scanumfang umfasst den kompletten Außen- und Innenraum aller Gebäude. Die generierte Punktwolke ist Grundlage für horizontale und vertikale Schnitte und Darstellung der Ansichten.
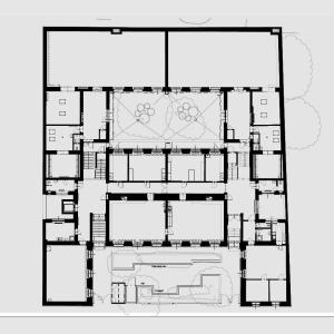
Bei diesem Objekt handelt es sich um einen Rundbau, welcher als Kindergarten genutzt wird. Das zweigeschoßige Gebäude hat eine direkte Erschließungstreppe vom Obergeschoß in den Garten. Eine zentral gelegene Wendeltreppe dient als Haupterschließung. Die 8 Gruppenräume sind auf beide Geschoße gleichmäßig aufgeteilt. Im Obergeschoß wird die Kubatur durch Dachaufbauten vergrößert.
Der Scanumfang umfasst den kompletten Außen- und Innenraum. Die generierte Punktwolke ist Grundlage für horizontale und vertikale Schnitte und Darstellung der Ansichten.
Es handelt sich um ein Eckgebäude im Zentrum Wiens. Als Grundlage für anstehende Erneuerungsarbeiten wurden Bestandsaufnehmen in Auftrag gegeben.
Dank der 3D-Laservermessung konnte eine detaillierte Punktwolke der vielteiligen Dachkonstruktion von innen sowie der komplexen Geometrie von außen aufgenommen werden.
Der Scanumfang umfasst den kompletten Außen- und Innenraum des Eckturms. Die generierte Punktwolke ist Grundlage für horizontale und vertikale Schnitte und Darstellung der Ansichten.
Bei diesem Objekt handelt sich um eine Volksschule im 10. Bezirk. Es werden die Unterrichtsstunden sowohl am Vormittag als auch am Nachmittag angeboten und es besteht eine Möglichkeit schwerpunktmäßig gestaltete Freizeitkurse zu besuchen.
Der Scanumfang umfasst den kompletten Außenraum und Innenraum. Die generierte Punktwolke ist Grundlage für horizontale und vertikale Schnitte und Darstellung der Ansichten.
Bei diesem Objekt handelt es sich um eine bilinguale Volksschule im 18. Wiener Gemeindebezirk. Seit September 1997 werden im Rahmen des Schulversuchs VBS “Vienna Bilingual Primary Schooling” Kinder mit deutscher und englischer Muttersprache gemeinsam in einer Klasse unterrichtet.
Zum straßenseitigen Altbau ist ein länglicher Zubau mit Turnsälen auf der Hofseite zugehörig.
Beide Umfassen einen geschützten Hofbereich mit einem Sportplatz.
Der Scanumfang umfasst den kompletten Außen- und Innenraum. Die generierte Punktwolke ist Grundlage für horizontale und vertikale Schnitte und Darstellung der Ansichten.
Das Schulhaus wurde vom Architekten Rüdiger Lainer entworfen und im Jahr 1994 fertiggestellt. Es zeichnet sich durch eine komplexe, geschoßübergreifende Raumstruktur aus. Dieser Umfang an komplexer Geometrie stellt hohe Anforderungen an die Vermessungstechnik. Hierbei zeigt unsere Messmethode ihre Stärken, da die Aufnahmegeschwindigkeit und Genauigkeit nicht durch die Anzahl der Details vermindert wird.
Der Scanumfang umfasst den kompletten Außen- und Innenraum. Die generierte Punktwolke ist Grundlage für horizontale und vertikale Schnitte und Darstellung der Ansichten.
Bei diesem Objekt handelt es sich um einen 1996 – 1997 errichteten Kindergarten der Stadt Wien.
Das Objekt setzt sich aus, in Größe und Funktion variablen, kubischen Gebäudeteilen zusammen, welche hofseitig durch Auskragungen und Aufständerungen Freiräume schaffen.
Offene Erschließungswege, Freitreppen und Rampen ziehen sich mehrgeschoßig durch den Komplex und setzen Akzente.
Der Scanumfang umfasst den kompletten Außen- und Innenraum. Die generierte Punktwolke ist Grundlage für horizontale und vertikale Schnitte und Darstellung der Ansichten.
Gegenstand dieser Bestandsaufnahme ist ein Wohngebäude im 19. Bezirk. Die 3D-Lasermessmethode ermöglichte eine schnelle, zuverlässige und für die Mieter angenehme Bestandserfassung in den bewohnten Teilen des Hauses.
Der Scanumfang umfasst den kompletten Außen- und Innenraum. Die generierte Punktwolke ist Grundlage für horizontale und vertikale Schnitte und Darstellung der Ansichten.
Das Objekt umfasst einen Altbautrakt und einen hofseitigen Zubau, welche beide als Volksschule genutzt werden. Der historische Dachstuhl unterlag im Lauf der Zeit vielen Modifikationen und statischen Verbesserungen. Die Laservermessung sichert die präzise und vollständige Erfassung der Messdaten von allen Konstruktionsteilen.
Der Scanumfang umfasst den kompletten Außen- und Innenraum. Die generierte Punktwolke ist Grundlage für horizontale und vertikale Schnitte und Darstellung der Ansichten.
Der Kindergarten in der Oldenburggasse befindet sich in einer Wohnhausanlage, die von der Architekten Bitschnau-Schlögl-Kroj-Millbacher geplant wurde. Das ebenerdige Gebäude liegt im Inneren des Areals und zeichnet sich durch die Fassade mit zwei rosa Risaliten mit Pultdächern und zwei Kuppel auf Hauptdach aus.
Der Scanumfang umfasst den kompletten Außenraum und Innenraum. Die generierte Punktwolke ist Grundlage für horizontale und vertikale Schnitte und Darstellung der Ansichten.
Bei diesem Objekt handelt es sich um eine Wiener Mittelschule mit Schwerpunkt Sprachen und Informatik. Die Schule umfasst 10 Schulklassen.
Der Scanumfang umfasst den vollständigen Außenraum, und den Innenraum der wichtigsten Teilbereiche. Die generierte Punktwolke ist Grundlage für horizontale und vertikale Schnitte und Darstellung der Ansichten.
Die komplexen Bauteile wie Gewölbe im Keller, verzogenes Kaminmauerwerk und Dachkonstruktion sind im Scanning vollständig erfasst. Damit ist eine detailgetreue und richtige Darstellung sichergestellt.
Das Wohnhaus befindet sich neben einer Baulücke, welche einen innerstädtische Grünfläche beheimatet. Signifikant ist die ehemalige Feuermauer mit ehemals eingeschnittenem Lichthof. Diese erfährt nun als freistehende Fassade hohe Aufmerksamkeit. Der Park wird 2016 neu gestaltet. Unter dem Park befindet sich eine Parkgarage. Sie ist zweigeschossig, und mit einem Autoaufzug erschlossen. Sie wird 2016 nach einem Umbau neu eröffnet.
Der Scanumfang umfasst den Außenraum im Bereich der Grünflächen. Die generierte Punktwolke ist Grundlage für die Darstellung der Ansichten.
Dabei handelt es sich um mehrere Einzelgebäude der Per Albin Hansson Siedlung im zehnten Wiener Gemeindebezirk. Sie umfassen jeweils Kindergärten und Kinderkrippen im Ausmaß von 6 Gruppen. Sie sind an nahe beinander liegenden Positionen nahezu baugleich errichtet. Obgleich mit gleichen Bauplänen errichtet ist die Ausführung auch voneinander abweichend. Mittels Laserscanning sind auch diese Unterschiede genauestens dokumentiert.
Der Scanumfang umfasst den kompletten Außen- und Innenraum. Die generierte Punktwolke ist Grundlage für horizontale und vertikale Schnitte und Darstellung der Ansichten.
Bei diesem Objekt handelt es sich um eine “offene Volksschule” im 18. Wiener Gemeindebezirk. Ein intensiver Englischunterricht und globale Erziehung liegen im Schwerpunkt dieser Schule.
Der, auf den ersten Blick orthogonal anmutende, Grundriss weist bei näherer Betrachtung eine klare Ausrichtung auf, die sich in mehreren Elementen durch das Gebäude zieht. Durch die Lasermessaufnahmen werden diese Feinheiten deutlich und sorgfältig dokumentierbar.
Der Scanumfang umfasst den kompletten Außen- und Innenraum. Die generierte Punktwolke ist Grundlage für horizontale und vertikale Schnitte und Darstellung der Ansichten.
Im Rahmen der Verwaltung von Gewerbeimmobilien kommt es zu Neuvermietungen, Sortiments- und Nutzungsänderungen, Erweiterungen, Untervermietungen und Umstrukturierungen. Neben Planungen und Umplanungen mit Alt- oder Neumieter sind Zulässigkeiten zu prüfen. Eine Änderung der beabsichtigten Nutzung erfordert eine Prüfung der Zulässigkeit. Es gilt Baugenehmigungen zu erwirken. Gewerbeimmobilien unterliegen generell kürzeren Nutzungszyklen. Richtige Grundlagen bilden die Basis für Rechtssicherheit und Legal Compliance.
Bei dem Objekt handelt es sich um ein Sonderpädagogisches Zentrum. Die Schwerpunktsetzung basiert auf „verschränktes Modell“, Kreativmodule und Lernclubs.
Der Scanumfang umfasst komplett den Außenraum und den Innenraum in Teilbereichen. Die generierte Punktwolke ist Grundlage für horizontale und vertikale Schnitte und Darstellung der Ansichten.
Komplexere Bauteile wie Gewölbe im Keller, verzogenes Kaminmauerwerk und Dachkonstruktion sind im Scanning vollständig erfasst.
Neben der Erfassung von Bestand oder der Darstellung von Veränderungen kann das 3D-Punktmodell zur Darstellung von Entwürfen oder Varianten eingesetzt werden. Aus der 3D-Punktwolke kann ein 3D-Gebäudemodell modelliert werden. In dieses Modell werden die Entwürfe eingesetzt. Die Integrierung von Vorschlägen oder Entwürfen in die 3D-Punktwolke bildet eine Möglichkeit der einfachen und effizienten Visualisierung.
Dieses Gebäude wurde 1892 unter Kaiser Franz Joseph I. während der großen Schulbauoffensive eigentlich als Volksschule errichtet. Der Großteil der Schüler bestand aus den Kindern böhmischer Ziegelarbeiter, die sich zur Zeit der Ringstraßenerweiterung im 10. Bezirk angesiedelt haben.
Heute wird das Objekt als NMS mit wirtschaftlich- mathematischem Schwerpunkt genutzt, beherbergt 19 Klassen mit 400 Schülerinnen und Schüler und knapp 50 Lehrerinnen und Lehrer.
Der Scanumfang umfasst den kompletten Außen- und Innenraum. Die generierte Punktwolke ist Grundlage für horizontale und vertikale Schnitte und Darstellung der Ansichten.
Bei dieser Feuerwache handelt es sich um einen Zweckbau im dichtverbauten innerstädtischen Bereich. Im Jahr 2014 wurde er einer Generalsanierung unterzogen. Neben dem Hauptgebäude ist der „Steigerturm“ situiert. Bei diesem handelt es sich um einen Übungsturm zum Trainieren von Fertigkeiten für Feuerwehrleute.
Der Scanumfang umfasst den kompletten Außenraum und teilweise den Innenraum. Die generierte Punktwolke ist Grundlage für horizontale und vertikale Schnitte und Darstellung der Ansichten.
Bei diesem Objekt im 4. Wiener Gemeindebezirk wurde die Erdgeschoßnutzung umgewidmet. Ein ehemaliges Unterstützungsinstitut soll als Kindergarten genutzt werden.
Der Scanumfang umfasst den kompletten Außenraum und die Innenräume des Erdgeschoßbereichs. Die generierte Punktwolke ist Grundlage für horizontale und vertikale Schnitte und Darstellung der Ansichten.
Dieses Objekt ist eine Volksschule mit musikalischem Schwerpunkt im 10. Bezirk mit einer Kapazität von circa 490 Kindern. Das Gebäude setzt sich aus zwei symmetrischen Teilen zusammen. Dazwischen befindet sich ein zweigeschoßiger Trakt mit je einem Turnsaal pro Geschoß.
Die Datenerfassung mit dem 3D-Laserscanner ermöglicht durch die erhöhte Messgenauigkeit die Gegenüberstellung beider symmetrischer Gebäudeteile und die Ermittlung kleinster baulicher Unterschiede.
Der Scanumfang umfasst den kompletten Außen- und Innenraum. Die generierte Punktwolke ist Grundlage für horizontale und vertikale Schnitte und Darstellung der Ansichten.
Es handelt sich hierbei um ein eingeschoßiges Bauwerk mit einem schwer zugängigen Spitzboden. Durch die Lasermesstechnik konnte auch dort exakt und effizient vermessen werden, wo der Zugang für einen Menschen schwierig möglich gewesen wäre.
Der Scanumfang umfasst den kompletten Außen- und Innenraum. Die generierte Punktwolke ist Grundlage für horizontale und vertikale Schnitte und Darstellung der Ansichten.
Dieses Objekt ist ein städtischer Kindergarten im 23. Bezirk.
Der Scanumfang umfasst den kompletten Außen- und Innenraum. Die generierte Punktwolke ist Grundlage für horizontale und vertikale Schnitte und Darstellung der Ansichten.
Dieses Objekt ist in seiner Funktion eine Erweiterung eines benachbarten Kindergartens und zeichnet sich durch eine fein strukturierte Ziegelfassade aus. Die Aufnahme des Gebäudes wurde auch an engen und schwer zugänglichen Orten zuverlässig durchgeführt.
Der Scanumfang umfasst den kompletten Außen- und Innenraum. Die generierte Punktwolke ist Grundlage für horizontale und vertikale Schnitte und Darstellung der Ansichten.
Im Grundriss zeigt sich ein Rechteckiger Schulbau mit Orthogonaler Innenstruktur. Die prägnante Geometrie im Aufriss mit ihrer Tonnendachstruktur wurde zum Logo der Volksschule.
Der Scanumfang umfasst den kompletten Außen- und Innenraum. Die generierte Punktwolke ist Grundlage für horizontale und vertikale Schnitte und Darstellung der Ansichten.
Dieses Projekt umfasst zwei Gebäude, welche sich in ihren Grundrissstrukturen nahezu gleichen und im Kellergeschoß durch Installationsgänge verbunden sind. Die Fassaden- und Dachaufbauten zeichnen sich jedoch durch die stilistische Unterschiedlichkeit voneinander aus.
Der Scanumfang umfasst den kompletten Außen- und Innenraum. Die generierte Punktwolke ist Grundlage für horizontale und vertikale Schnitte und Darstellung der Ansichten.
Hierbei handelt es sich um einen Kindergarten mit Krippe und Hort der Gemeinde Wien.
Der Scanumfang umfasst den kompletten Außen- und Innenraum. Die generierte Punktwolke ist Grundlage für horizontale und vertikale Schnitte und Darstellung der Ansichten.
Im 22. Wiener Gemeindebezirk wurde 2016 ein Stützpunkt der MA45 – Wiener Gewässer – mit Lagerhallen, Reparaturwerkstätten und Sozialbereichen erweitert. Unser Projekt beinhaltet die spätere Vermessung von Teilen dieses Gebäudekomplexes, welcher sowohl größere Hallen, als auch kleinere Nebenräume Umfasst.
Der Scanumfang umfasst den kompletten Außen- und Innenraum. Die generierte Punktwolke ist Grundlage für horizontale und vertikale Schnitte und Darstellung der Ansichten.
Die Vielfalt an Höhensprüngen und die Komplexität der Grundrissstruktur ist ein Charakteristikum dieses Bauwerks. Unter Verwendung der 3D-Lasermesstechnik konnte das Gebäude bis ins Detail in seinem Bestand erfasst werden.
Der Scanumfang umfasst den kompletten Außen- und Innenraum. Die generierte Punktwolke ist Grundlage für horizontale und vertikale Schnitte und Darstellung der Ansichten.
Gegenstand dieser Aufnahme ist ein Wohngebäude im 8. Bezirk.
Der Scanumfang umfasst den kompletten Außenraum und Innenraum. Die generierte Punktwolke ist Grundlage für horizontale und vertikale Schnitte und Darstellung der Ansichten.
Die Aufnahmen dienten als Grundlage für Aufmaß- und Nutzerpläne.
Hierbei handelt sich um einen Kindergarten, wo die Kleinkinder Gruppen für 0-3 Jährigen und die Gruppen für 3-6 Jährigen angeboten werden. Der Betreiber ist die Stadt Wien.
Der Scanumfang umfasst den kompletten Außenraum und Innenraum. Die generierte Punktwolke ist Grundlage für horizontale und vertikale Schnitte und Darstellung der Ansichten.
Gegenstand dieser Aufnahme ist ein Wohnhaus im 8. Bezirk, das im 1825 errichtet wurde und danach im 1901 umgebaut wurde.
Der Scanumfang umfasst den kompletten Außenraum und Innenraum. Die generierte Punktwolke ist Grundlage für horizontale und vertikale Schnitte und Darstellung der Ansichten.
Hierbei handelt es sich um ein Hofgebäude einer Feuerwache, welches anlässlich des Umbaus des Hauptgebäudes eine temporäre Umwidmung erfährt.
Der Scanumfang umfasst den kompletten Außen- und Innenraum. Die generierte Punktwolke ist Grundlage für horizontale und vertikale Schnitte und Darstellung der Ansichten.
Dieser Kindergarten befindet sich im 8. Bezirk. Es handelt sich um ein denkmalgeschütztes Objekt. Auffällig sind das Hauszeichen, sowie drei Betonreliefs die zwischen den Fenstern angebracht sind und die Fassade gliedern. Es werden Hort, Integrationsgruppe im Hort, Kleinkindergruppe und Familiengruppe für 2-6 Jährige angeboten.
Der Scanumfang umfasst den kompletten Außenraum und Innenraum. Die generierte Punktwolke ist Grundlage für horizontale und vertikale Schnitte und Darstellung der Ansichten.
Bei diesem Gebäude handelt sich um einen kleinen, freistehenden Kindergarten der Stadt Wien mit Familiengruppen für die 3-10 Jährigen im Angebot. Das Raumgefühl und Wirkung der Materialien darauf, sind durch die Farbinformationen in der Punktwolke dokumentiert.
Der Scanumfang umfasst den kompletten Außenraum und Innenraum. Die generierte Punktwolke ist Grundlage für horizontale und vertikale Schnitte und Darstellung der Ansichten.